Explore Our Work Samples

Conceptual Civil Design Samples - Grading, Drainage & Utilities, Paving, Demolition and Erosion Control Plan Samples

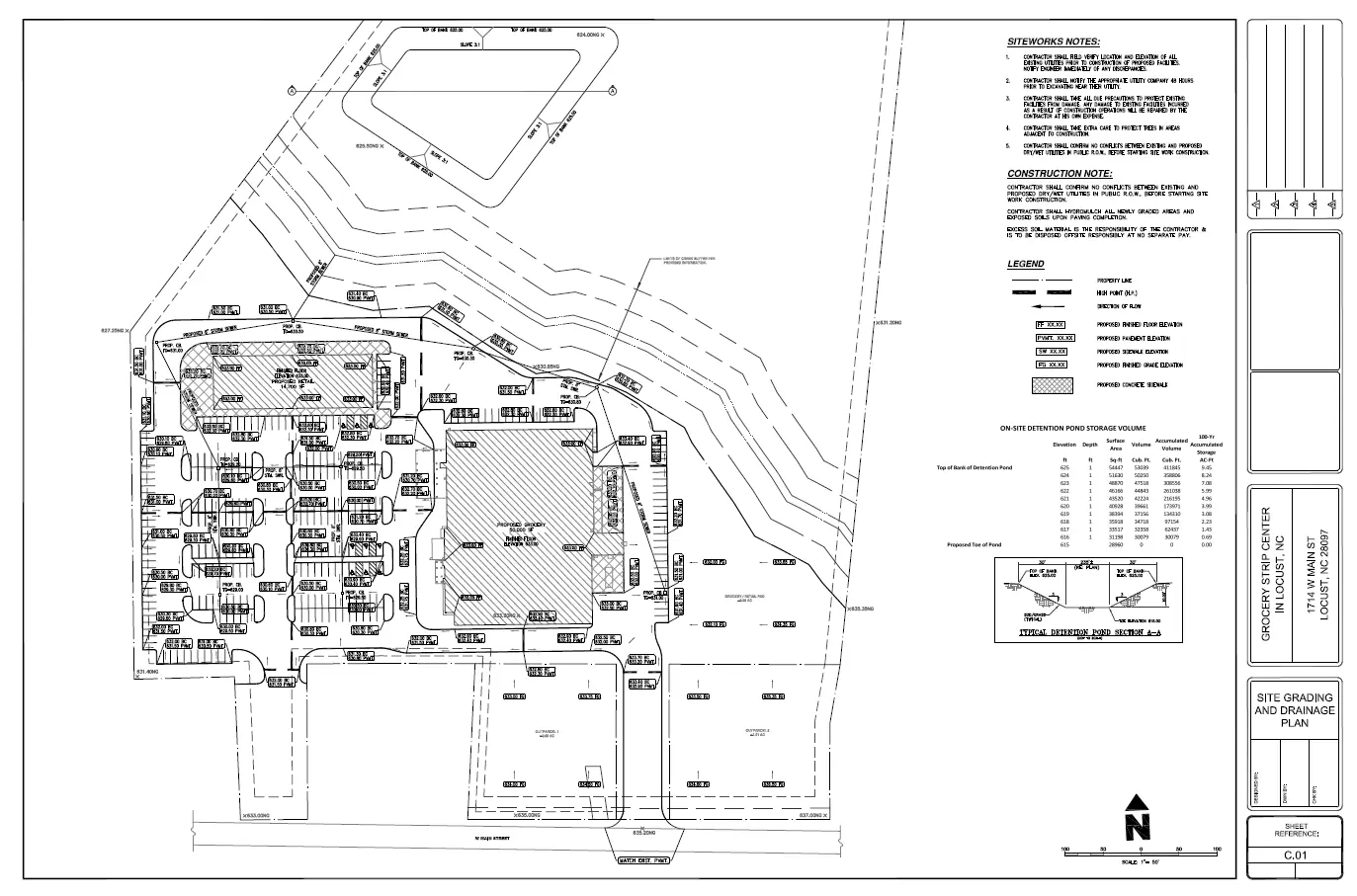
View real examples of grading and drainage plans, site plans, wet utility coordination, paving plans, erosion control plans and ADA compliant civil designs prepared by our engineering team.

Concept Grading, Drainage & Utility Plan with Earthwork & Civil Takeoff Sample

Earthwork Takeoff, Civil Takeoff and Full-Scope Siteworks Takeoff Samples

Need a detailed grading analysis, cut-full calculations, earthwork takeoff with 3D model of site? Explore our other services below.